Appartement T3 avec terrasse, jardin et garage - Résidence récente
Description de l'offre
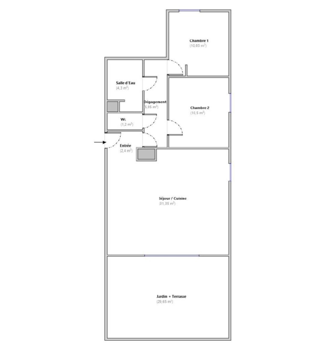
Quartier La Rose, au calme dans une impasse à 5 min à pieds du métro. Appartement T3 avec terrasse, jardin et garage dans une petite résidence récente, calme et sécurisée. L'entrée de l'appartement se fait par le 1er étage sans ascenseur. D'une surperficie carrez de 66,45 m², cet appartement en excellent état est composé d'une belle pièce à vivre de 31 m² (cuisine équipée - salon) ouvrant sur la terrasse, d'un coin nuit offrant 2 chambres avec placards (10,8 et 10,5 m²), une salle de bain et des toilettes séparés. Le jardin et la terrasse sont exposés Ouest sans aucun vis-à-vis - Superficie de l'extérieur : 30 m². Grand garage de 27 m² en sous-sol pouvant acceuillir une voiture et une moto. Prestations : porte blindée, visiophone, carrelage au sol, fibre, eau chaude et chauffage individuels électrique, sèche-serviettes électrique. Diagnostics : aucune anomalie électricité. DPE : B. Taxe foncière : 1 770 € /an. Charges : 186 € / mois comprenant l'eau froide, le fond travaux Alur, le ménage des parties communes, le syndic, les espaces verts. Petite copropriété calme et bien entretenue, espaces verts, local vélos et poussettes, parkings et garages. Copropriété de 45 appartements. « Les informations sur les risques auxquels ce bien est exposé sont disponibles sur le site Géorisques : www.georisques.gouv.fr ». Les honoraires sont à la charge du vendeur.
Descriptif du bien
- Prix du bien : 199 000 €
- Ville : Marseille
- Type de biens : Appartement
- Code postal :
- Code postal : 13013
- Surface loi Carrez (m²) :
- Surface loi Carrez (m²) : 66,45 m²
- Nombre de chambre(s) :
- Nombre de chambre(s) : 2
- Nombre de pièces :
- Nombre de pièces : 3
- Etage :
- Etage : 1
- Ascenseur :
- Ascenseur : NON
- Nb de salle de bains :
- Nb de salle de bains : 1
- Cuisine :
- Cuisine : AMERICAINE
- Type de cuisine :
- Type de cuisine : EQUIPEE
- Mode de chauffage :
- Mode de chauffage : Electrique
- Type de chauffage :
- Type de chauffage : Convecteur
- Format de chauffage :
- Format de chauffage : Individuel
- Visiophone :
- Visiophone : OUI
- Terrasse :
- Terrasse : OUI
- Nombre de garage :
- Nombre de garage : 1
- Cave :
- Cave : NON
- Exposition :
- Exposition : SUD-OUEST
- Année de construction :
- Année de construction : 2008
- Copropriété :
- Copropriété : OUI
- nombre de lots :
- nombre de lots : 45
- Quote Part annuelle des charges :
- Quote Part annuelle des charges : 2 232 €
- plan de sauvegarde :
- plan de sauvegarde : NON
- Prix de vente honoraires TTC inclus :
- Prix de vente honoraires TTC inclus : 199 000 €
- Charges :
- Charges : 186 €
- Taxe foncière annuelle :
- Taxe foncière annuelle : 1 770 €
La ville de Marseille (13013)
Nous Contacter
Afficher le téléphone 0661435264Les informations recueillies sur ce formulaire sont enregistrées dans un fichier informatisé par La Boite Immo agissant comme Sous-traitant du traitement pour la gestion de la clientèle/prospects de l'Agence / du Réseau qui reste Responsable du Traitement de vos Données personnelles.
La base légale du traitement repose sur l'intérêt légitime de l'Agence / du Réseau.
Elles sont conservées jusqu'à demande de suppression et sont destinées à l'Agence / au Réseau.
Conformément à la loi « informatique et libertés », vous disposez des droits d’accès, de rectification, d’effacement, d’opposition, de limitation et de portabilité de vos données. Vous pouvez retirer votre consentement à tout moment en contactant directement l’Agence / Le Réseau.
Consultez le site https://cnil.fr/fr pour plus d’informations sur vos droits.
Si vous estimez, après avoir contacté l'Agence / le Réseau, que vos droits « Informatique et Libertés » ne sont pas respectés, vous pouvez adresser une réclamation à la CNIL.
Nous vous informons de l’existence de la liste d'opposition au démarchage téléphonique « Bloctel », sur laquelle vous pouvez vous inscrire ici : https://www.bloctel.gouv.fr
Dans le cadre de la protection des Données personnelles, nous vous invitons à ne pas inscrire de Données sensibles dans le champ de saisie libre.
Ce site est protégé par reCAPTCHA, les Politiques de Confidentialité et les Conditions d'Utilisation de Google s'appliquent.
